Dzięki specjalnie zaprojektowanemu modelowi 3V, w którym taśma tnąca o szerokości od 15 do maksymalnie 35 mm jest prowadzona przez trzy solidne odlewane koła o średnicy 600 mm każde, PANHANS oferuje solidną, wysokowydajną piłę taśmową, która jest szczególnie odpowiednia do obróbki bardzo dużych elementów obrabianych w zastosowaniach przemysłowych i w budownictwie drewnianym.

Cechy:
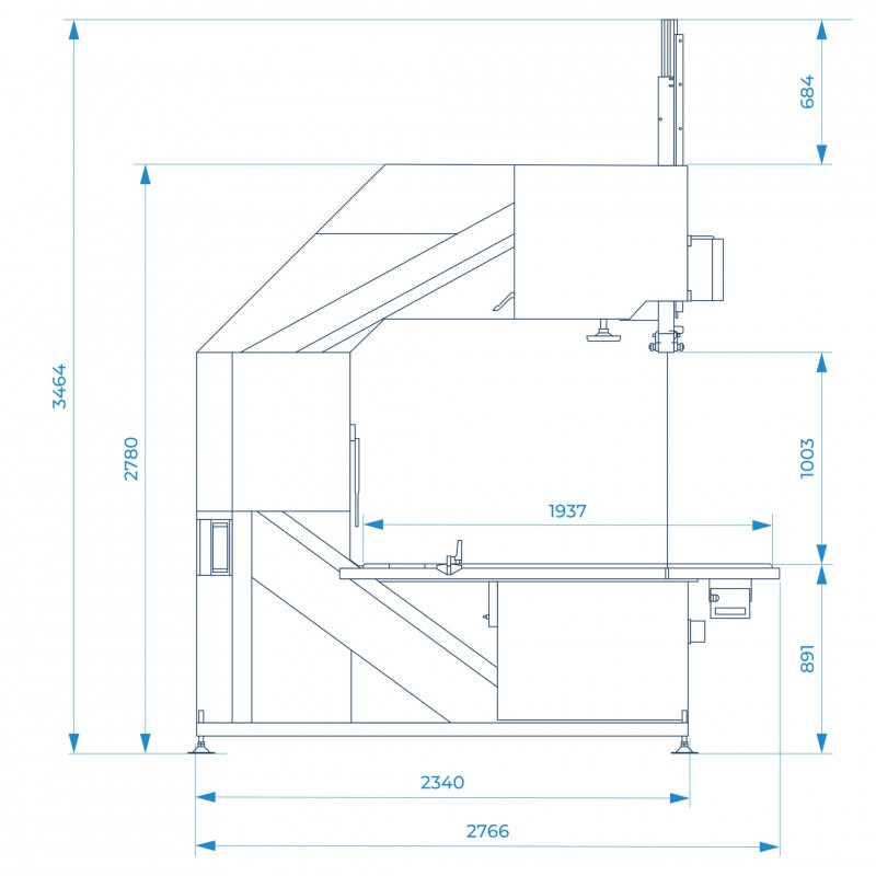
- Prawie 3,5-metrowa piła taśmowa i duży blat stołu o wymiarach zewnętrznych 1940 x 1000 mm umożliwiają bezproblemową obróbkę wysokości cięcia do 1000 mm i szerokości cięcia do 1450 mm, z maksymalną precyzją i najlepszymi wynikami cięcia.
- Maszyna jest wyposażona w precyzyjną i solidną, wysokowydajną prowadnicę brzeszczotu taśmowego APA 2. Dzięki łatwej w obsłudze precyzyjnej regulacji i stabilnej konstrukcji zapewnia długą żywotność używanego brzeszczotu taśmowego.
- Regulacja wysokości górnej prowadnicy brzeszczotu (w tym osłony brzeszczotu) jest napędzana silnikiem za pomocą listwy zębatej i jest zabezpieczona u góry i u dołu mechanicznymi wyłącznikami krańcowymi. W tym celu na blacie stołu zamontowany jest oddzielny panel sterowania z bezpiecznym sterowaniem oburęcznym.
- Bezskrętna konstrukcja spawana dwukomorowo z wysokiej jakości stali, precyzyjnie wystrugany blat roboczy, składany ogranicznik stołu i wszystkie niezbędne urządzenia zabezpieczające są standardowymi elementami wyposażenia PANHANS. W zestawie znajduje się również skuteczna osłona tarczy piły z okienkiem kontrolnym i wewnętrznymi wyłącznikami bezpieczeństwa, które zapobiegają uruchomieniu maszyny przy otwartych drzwiach.
- W zależności od wymagań klienta maszyna jest dostępna ze stałą lub bezstopniową prędkością tarczy piły za pomocą falownika.
- Opcjonalnie maszynę można wyposażyć we wskaźnik położenia lasera do wyświetlania krawędzi tnącej na obrabianym przedmiocie.
Optymalny napęd taśmy tnącej
- Solidne koła ze stali odlewanej o dużych średnicach zapewniają bezpieczną i płynną pracę. Odporne na ścieranie gumowe pokrycia, szlifowane w koronie, prowadzą brzeszczot dokładnie w żądanej pozycji. Gwarancja najwyższej precyzji przy maksymalnej żywotności brzeszczotu.
Uniwersalny ogranicznik równoległy
- Uniwersalny ogranicznik równoległy można złożyć w celu uniwersalnego zastosowania. Ogranicznik równoległy jest również odwracalny i może być używany po lewej i prawej stronie brzeszczotu; wysoka pozycja dla szerokich części, płaska pozycja dla wąskich części.
Mocny silnik napędowy
- Silnik napędowy piły taśmowej 3V jest odpowiednio zwymiarowany i mocny, a także energooszczędny. Nawet wielkoformatowe elementy obrabiane można obrabiać bez trudności.
Centralny panel sterowania
- Wszystkie ważne ustawienia są dokonywane za pomocą centralnie zamontowanego panelu sterowania. Jednocześnie elementy obsługi i sterowania są przejrzyście rozmieszczone, łatwe do zrozumienia i oczywiste. Ponadto maszyna ma dwa oddzielnie zamontowane przyciski zatrzymania awaryjnego.
Wyposażenie opcjonalne:
- bezstopniowa regulacja prędkości (310 - 1860 m/min)
- dodatkowy przycisk wyłączenia awaryjnego
- laser
- taśma tnąca